East 14th Street Apartment

East Village, New York City

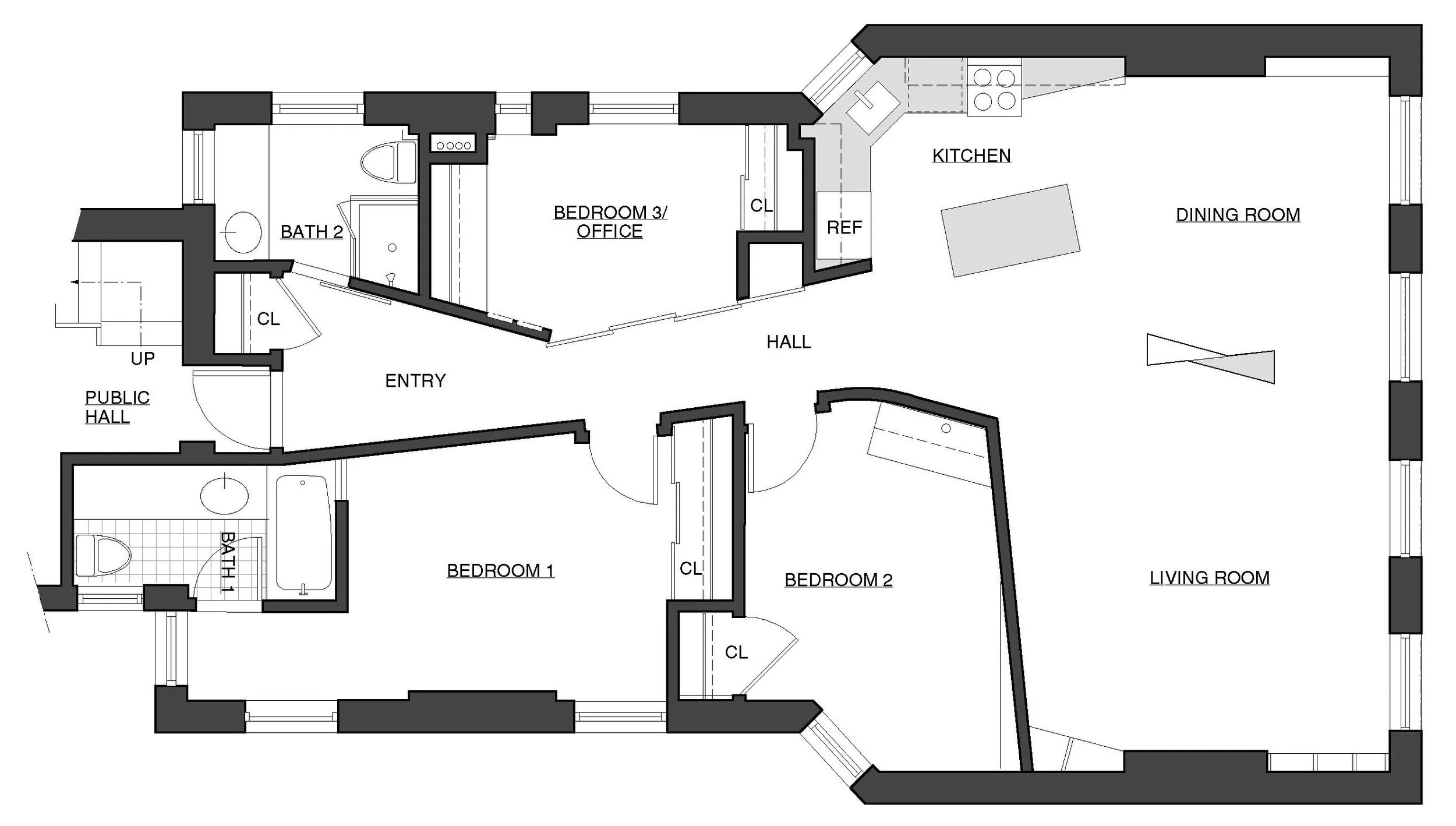
Combining two East Village tenement apartments into one, the East 14th Street Apartment adapted nicely to a center hall layout, emerging into an open kitchen / dining / living space, defined by a central glass case and lighting feature.

One of the 3 bedrooms can be opened up to the hall as an office or lounge by use of sliding wall panels.

The mechanical design features a central ductless split AC system with a single condenser mounted on an exterior wall, and air handler controls in each room.

Previous
Previous

Discovery Wines

Next
Next

East Village Apartment