Broadway Apartment

Lower Broadway, New York City

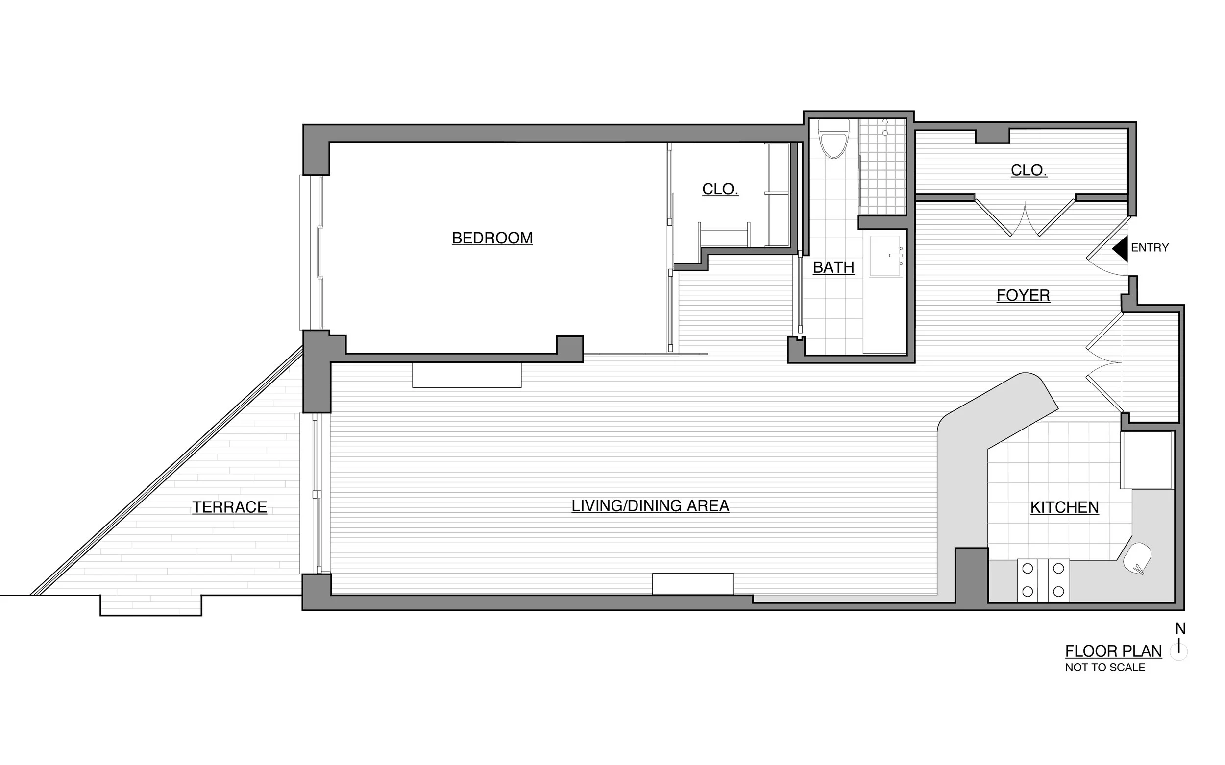
Modernization was the charge for this downtown Manhattan apartment. The complete renovation included kitchen and living room cabinetry, stainless steel and stonework, lighting, trim and giant glass sliding doors. Kitchen upper storage cabinets were converted to a lighting band. As a green project, all finishes are non-toxic, lighting is energy efficient and plumbing fixtures are water saving.

Previous
Previous

Black Ink Marketing

Next
Next

Brooklyn Building Addition